Devon Triangle Project: A Historic Multi-Family Housing Development
Habitat for Humanity-MidOhio is expanding access to affordable homeownership in the Devon Triangle neighborhood in Columbus, Ohio through a new multi-family housing development that will connect families to hope and opportunity through affordable homeownership.
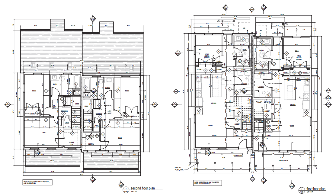
The Devon Triangle Project in the city's near east side, will create 14 homes across four triplexes and one duplex, offering a thoughtful approach to added gentle density while maintaining the character of the surrounding community. Units will be three to four bedrooms each and approximately 1280 to 1400 square feet. This project reflects Habitat MidOhio’s commitment to evolving how we build so more families can obtain and maintain safe, affordable homes.
If you are interested in a homeownership applications, check this site for more information as we work to announce the next application period.
The groundbreaking happened on April 23. Read more here.
Building Opportunity Through Partnership
The Devon Triangle Project is made possible through collaboration with the City of Columbus and the support of public funding, corporate partners, individual donors, and volunteers. Together, these partnerships allow Habitat MidOhio to respond to changing housing needs while remaining focused on long-term affordability and community impact.
Funding Partners
- AEP Foundation
- Church of the Resurrection
- City of Columbus
- Franklin County Board of Commissioners
- Habitat Young Professionals
- IBP
- Keith Dufrane
- Ned and Marquell Segelken
- Safelite Foundation
Interested in being a part of this project? Contact Kate Ames, Director of Development at KAmes@habitatmidohio.org.
Groundbreaking
Thursday, April 23, was indeed a historic day for Habitat MidOhio, as we broke ground on the Devon Triangle multi-family housing development. Surrounded by community partners, future homeowners, volunteers, and neighbors, it was a joyful, long-awaited celebration. The energy was electric; the community showed up, and together we took a step forward in tackling the affordable housing crisis in Central Ohio.
To everyone who joined us - thank you. Your presence made this day even more special.
Media Coverage:
You can also watch the entire event here by the City of Columbus’s Media Team, CTV.
Devon Triangle Groundbreaking Photos
Photos by Tyler Wick
